C | 205
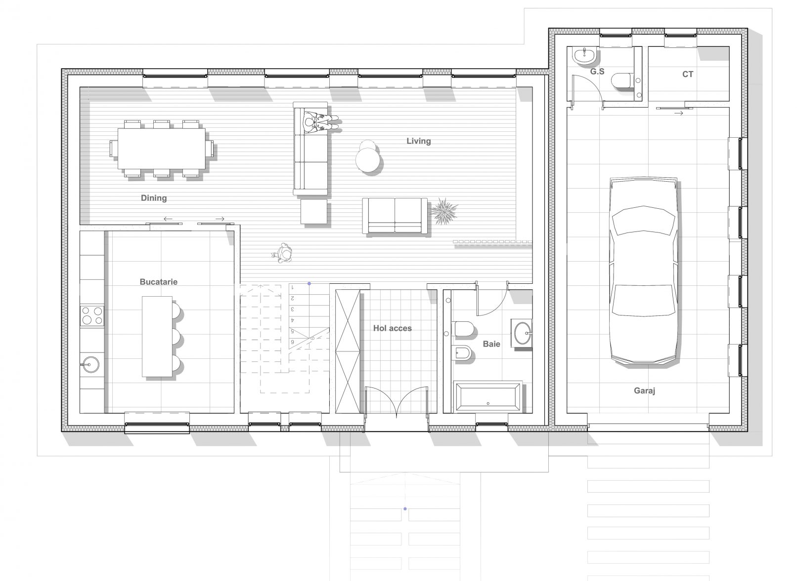
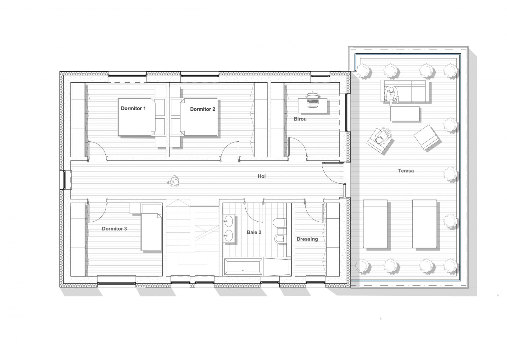
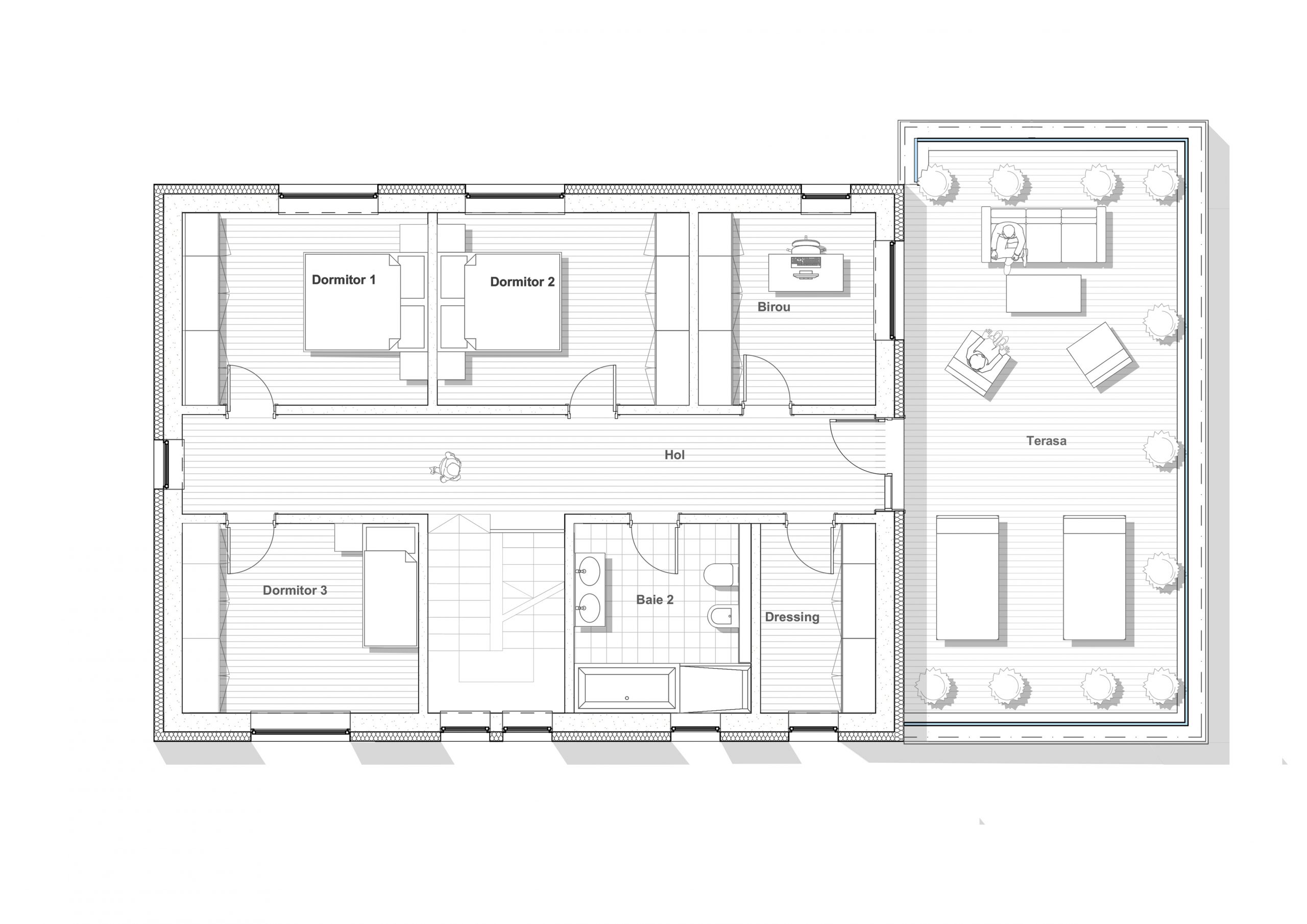
Locuinta P+1
Aceasta casa cu etaj este caracterizata de o arhitectura rezidentiala moderna, cu linii curate si o paleta de culori predominant albe care ii confera un aer proaspat si contemporan. Exteriorul, cu liniile drepte si unghiurile ascutite, dau casei un aspect indraznet si izbitor.
Una dintre caracteristicile remarcabile ale casei este terasa mare de la etaj, care are vedere spre curtea interioara. Acest spatiu in aer liber este locul perfect pentru relaxare, cu mult spațiu pentru mobilier, plante și alte facilități.







