Acasa
Proiecte
Servicii
Intrebari frecvente
Contact
MENIU
INCHIDE
YouTube
Facebook
Instagram
Email
Contact: +40721151387
MENIU
INCHIDE
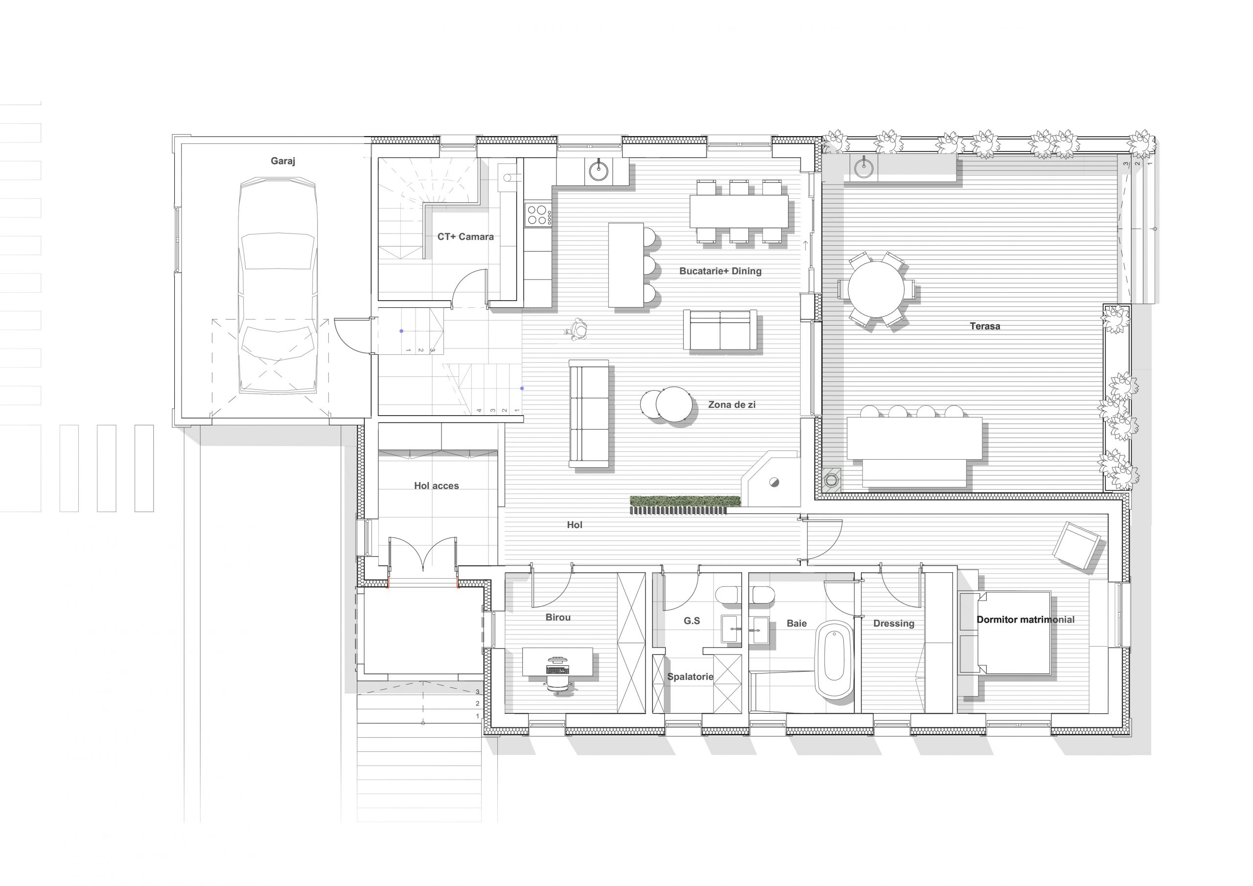
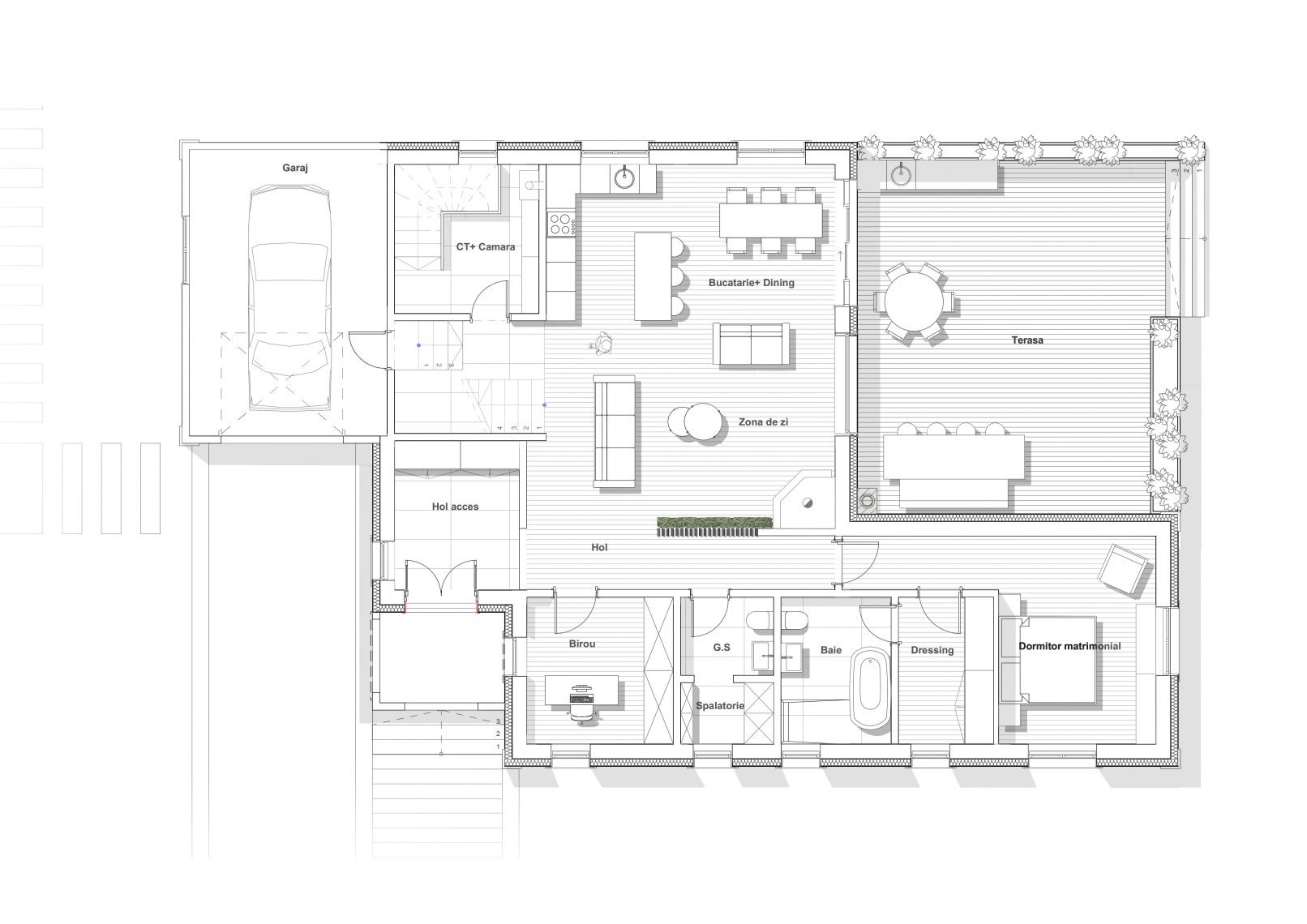
C | 504
All Design Transparent
An
2020
Locatie
Giurgiu
55
Previous project
Next project